Laura AYRAL-FLOOD
Négociatrice
Contacter l'agent
Sous-offre
Exclusivité
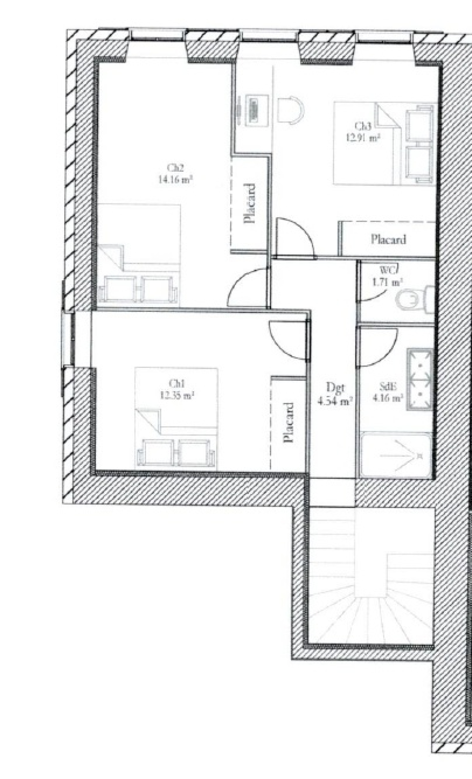
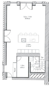
Maison 2 pièce(s) 3 chambre(s) 120 m²
Saint-Macaire (33490)
139 000 €
Référence 179
A propos de ce bien
Caractéristiques de ce bien
- Surface 120 m²
- 3 chambre(s)
- 1 côté(s) mitoyen(s)
- 2 niveau(x)
Diagnostics énergétiques
DPE ANCIENNE VERSION
Informations financières
Prix de vente
139 000 €
Les honoraires d'agence seront intégralement à la charge du vendeur
